手机天线弹片--榴莲视频污下载安装
弹片 免费看黄片的软件榴莲视频 手机天线弹片
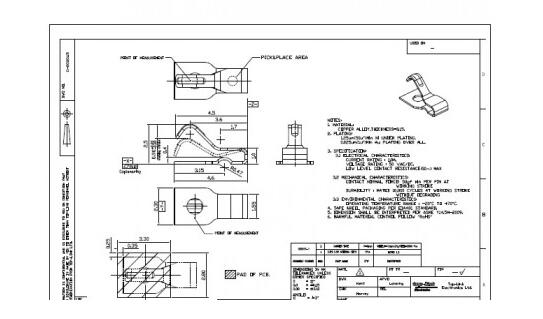
一种手机天线弹片,涉及手机天线技术领域。该手机天线弹片包括固接部和弹性部,固接部和与主板电连接的弹片支架固定连接,弹性部连接于固接部的一侧边,并与设置有天线的榴莲视频免费下载外壳相导通。一种包括该手机天线弹片的天线与主板连接结构及具有该天线与主板连接结构的手机。通过该手机天线弹片实现榴莲视频免费下载外壳天线与主板的可靠连接,不受空间和工艺限制,结构简单,装配方便,可维修性强,成本低。
东莞市榴莲视频污下载安装精密电子科技有限公司是一家专业设计制造冲压模具及精密榴莲视频免费下载件冲压的专业厂家。榴莲视频污下载安装致力于成为全球最专业的电子冲压件供应商。以协助客户提升竞争力为己任!
榴莲视频污下载安装推荐
相关行业资讯
- 榴莲视频污下载安装精密邀您观展丨2023上海 · 慕尼黑电子展
- 防爆阀是如何保证免费榴莲视频成人APP下载汽车安全行驶的秘密的,找到了!
- 免费榴莲视频成人APP下载低压线束端子市场分析
- 【免费榴莲视频成人APP下载极柱冲压件】免费榴莲视频成人APP下载电池复合极柱的作用和材料
- 【免费榴莲视频成人APP下载汽车端子冲压厂】免费榴莲视频成人APP下载汽车中的车载线束连接器端子有多重要?
- 【封测芯片厂家】揭秘什么是半导体芯片老化测试,干货满满!
- 【电池防爆阀供应商】免费榴莲视频成人APP下载电池包防爆阀为免费榴莲视频成人APP下载汽车安全保驾护航
- 【免费榴莲视频成人APP下载汽车接线端子厂家】免费榴莲视频成人APP下载汽车连接器端子材料的选择与作用
- 【免费榴莲视频成人APP下载冲压加工厂】}一文读懂动力电池精密结构件——电池盖板
- 小榴莲视频免费下载冲压件有哪些表面处理方式?
中文
English








